Eramu Lätis

asukoht I Läti
aasta I valmimas
ruum I 170 m2

sisearhitektuur I Liis Adamson, Jane Riikjärv

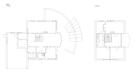
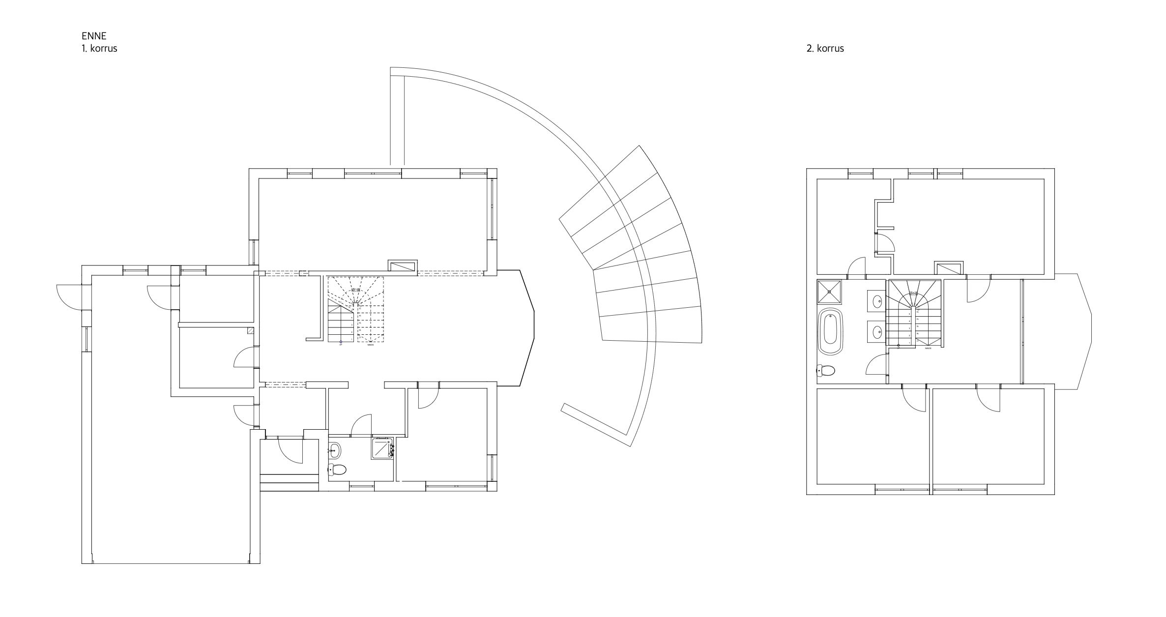
Jurmala lähistel rohelises ja rahulikus väikelinnas asuv 2005. aastal valminud eramu renoveerimise lähteülesandeks oli muuta ajale jalgu jäänud siselahendus kaasaegselt avatuks ja funktsionaalselt toimivaks.

Esimese korruse planeeringu muudatus taotleb eelkõige selget tsoneerimist ja tervikut moodustavat sisekujundust. Nii kujunebki sissepääsust elutoa ja köögini perele ja külalistele avatud loungelik tsoon ja kontor-külalistetoast peidetud privaatne tsoon.

Interjööri peamiseks kujunduselemendiks on uue väljanägemise saanud keerdtrepp. Ruumides valitsevad rannikulinna parkmetsast inspireeritud soojad pruunikad toonid.

@2023 UBIN DISAIN OÜ kõik õigused kaitstud.