ERAMU PÕHJA-EESTI RANNIKUL

asukoht I Põhja-Eesti rannik
aasta I valmimas
ruum I 200 m2

sisearhitektuur I Liis Adamson, Jane Riikjärv
arhitektuur I Projekt 24

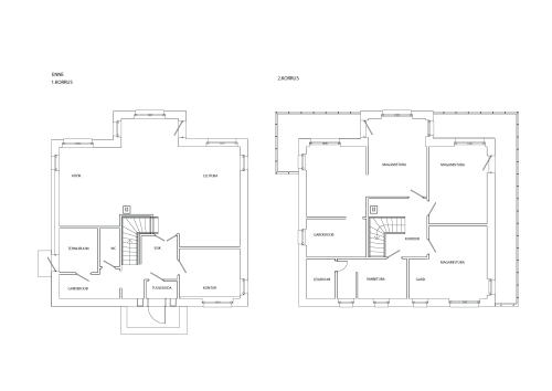
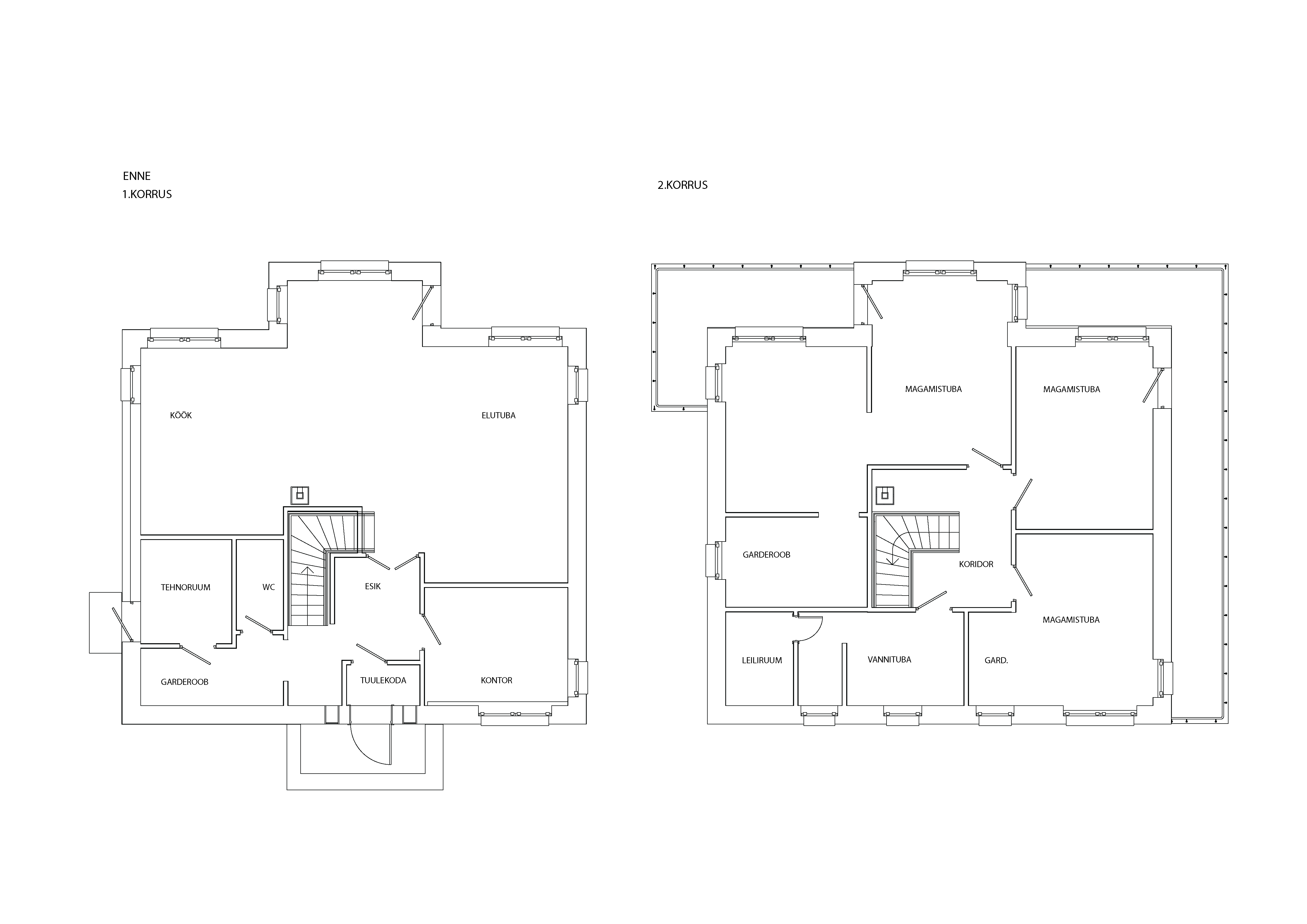
Põhjaranniku kaunile ürgoru servale kerkiv uus kahekorruseline eramu on ruumiplaneeringu poolest kompaktne ja tellijate põnevaid soove arvestav.

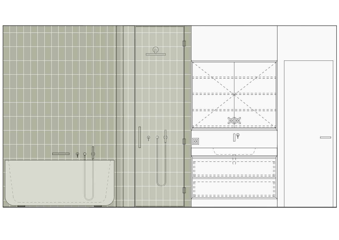
Eramu sisearhitektuurne kontseptsioon taotleb ühest küljest karget minimalistlikku selgust ja teisalt naturaalse puidu puudutusega kodusoojust. Nauditav tervik jätab silmale nähtamatuks kaasaegse kodu funktsionaalseks toimimiseks vajalikud tehnilised lahendused ja toob esile valitud asjade ilu. Interjööri läbiv mahe ja rahulik palett ammutab inspiratsiooni rannikuvärvidest ja muudab piiratud ruumi helgeks ja avatuks.

@2023 UBIN DISAIN OÜ kõik õigused kaitstud.