mikromaja lõuna-eestis

asukoht I Lõuna-Eesti kuppelmaastik
aasta I 2023
ruum I 20 m2

sisearhitektuur I Jane Riikjärv
arhitektuur I Jane Riikjärv
fotograaf I Jaak Nilson

Mida tempokam on elu linnas, seda suuremaks kasvab soov aeg maha võtta. Kuulata vaikust ja nautida maalähedase elu võlu. Teha seda koormava olmeta ja hea elu lihtsas võtmes.

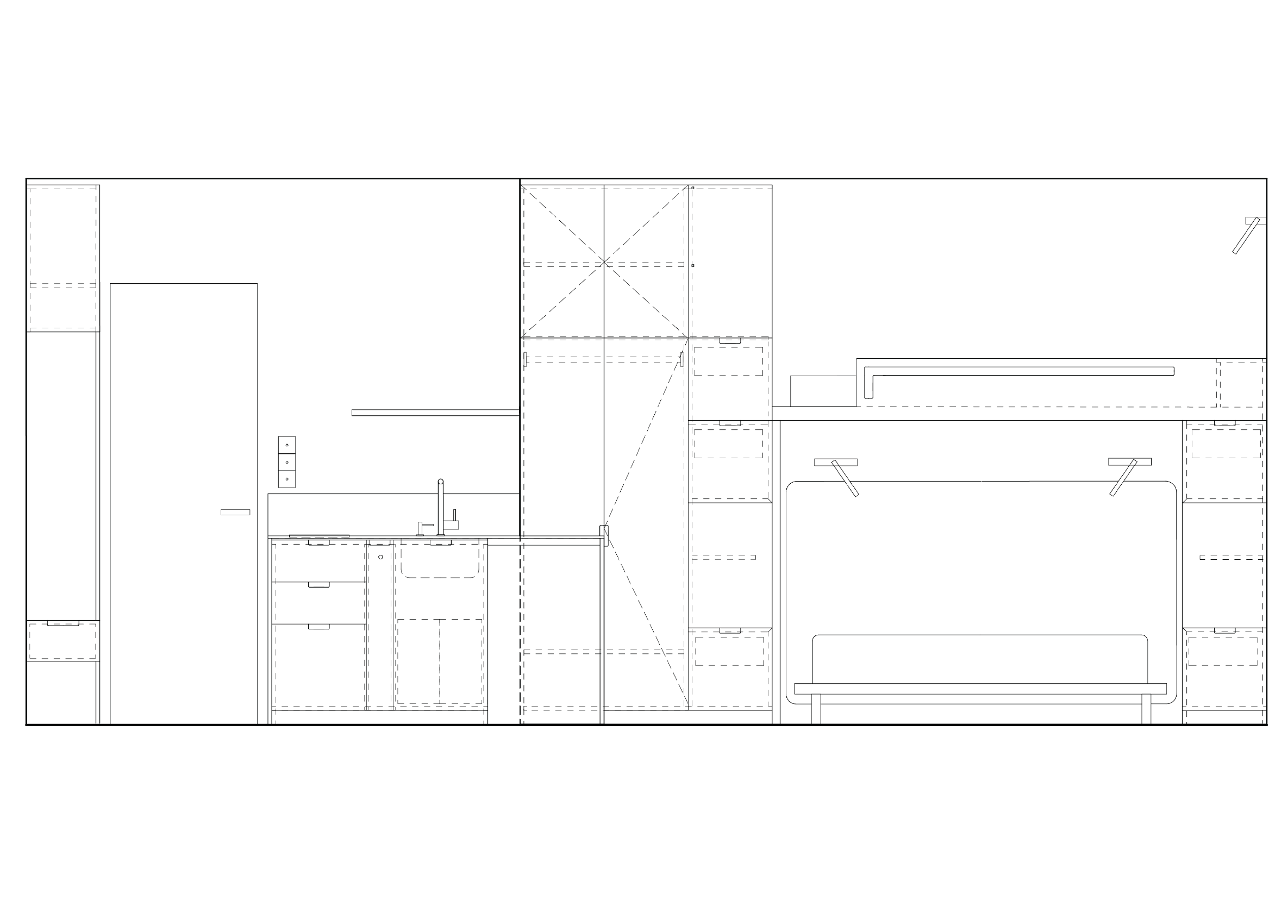
Ratsionaalne ja liialdusteta lähenemine sai väikemajatootja poolt näidatud projekti edasiarenduse lähtepunktiks. Lihtsa vormiga mikromaja ilmestavad kauneid järve- ja metsavaateid pakkuvad kõrged aknad ja maja sisemusse lõikuv sissepääs. Siseruumi aitab visuaalselt suuremaks muuta avar, maapinna langusega arvestav puitterrass. Õueruumi muudab kompaktseks ja tuulte eest varjatuks terrassilt ligipääsetav kuur koos varjualusega.

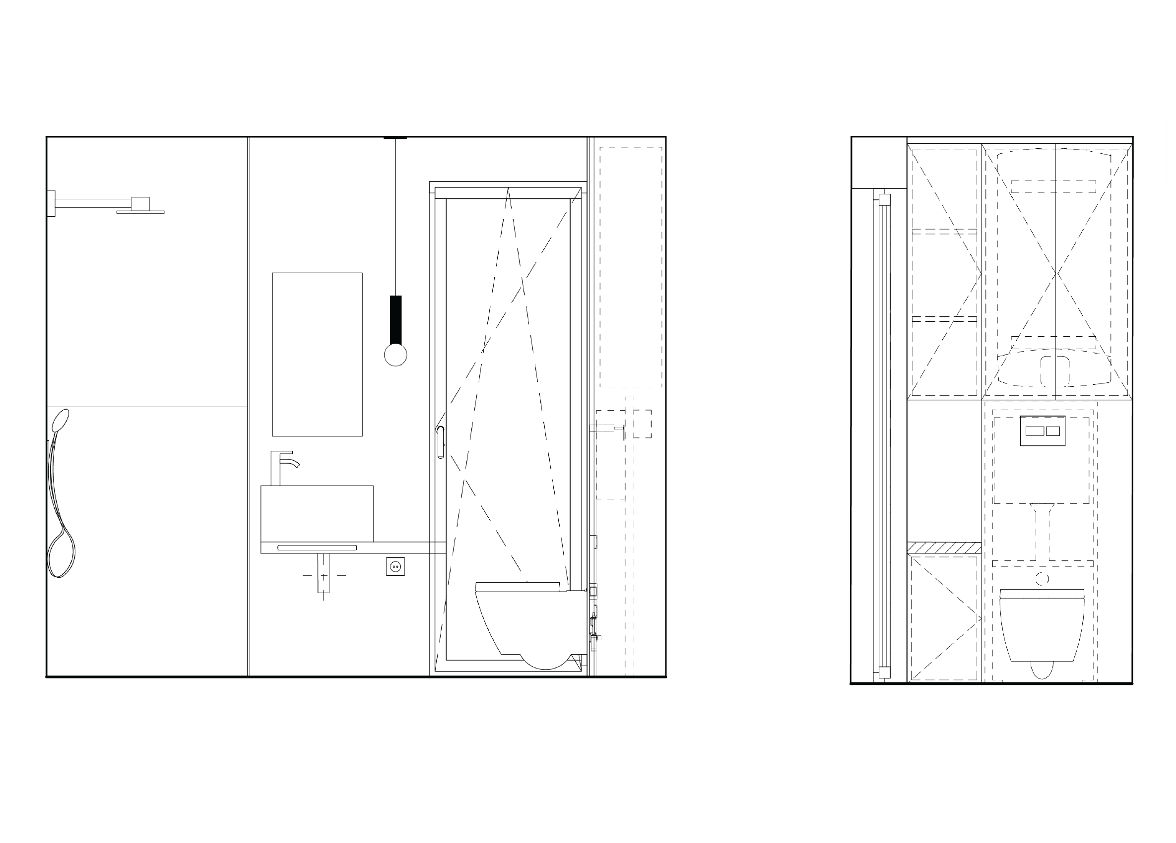
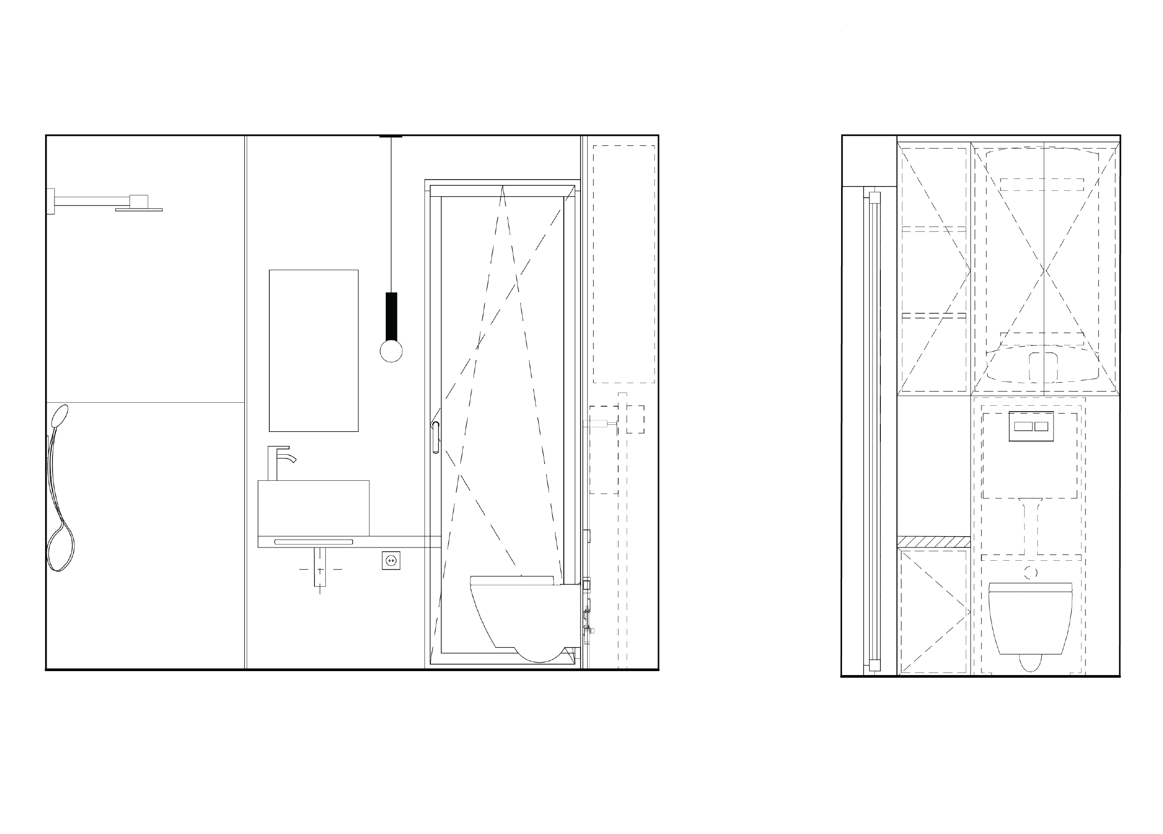
Maja nappidest ruutmeetritest hoolimata seati eesmärgiks, et köögiala ei avaneks otse magamistuppa ja wc-dušširuumis oleks piisavalt avarust. Sentimeeter haaval läbimõeldud funktsionaalselt toimiv lahendus saavutati koostöös erimööbli valmistajaga. Naturaalselt ja valgusküllaselt mõjuva ruumi loomise võtmematerjaliks valiti heleda naturaalse õlivahaga töödeldud kuuse ristkihtpuit. Viimast kasutati nii peamise siseviimistlusmaterjali kui sisseehitatud mööbli puhul.

Valguslahenduses on peamiselt kasutatud minimalistlikke valgustugevuse osas reguleeritavaid koht- ja ledribavalgusteid, mis loovad ruumi sügavust ja tagavad õdusa olemise tubastel õhtutel.

@2023 UBIN DISAIN OÜ kõik õigused kaitstud.