BÜROO TALLINNAS

asukoht I Delta Plaza büroohoone, Tallinn
aasta I 2021
ruum I  432 m2

sisearhitektuur I Ubin sisearhitektid
projektigraafika I Ubin sisearhitektid

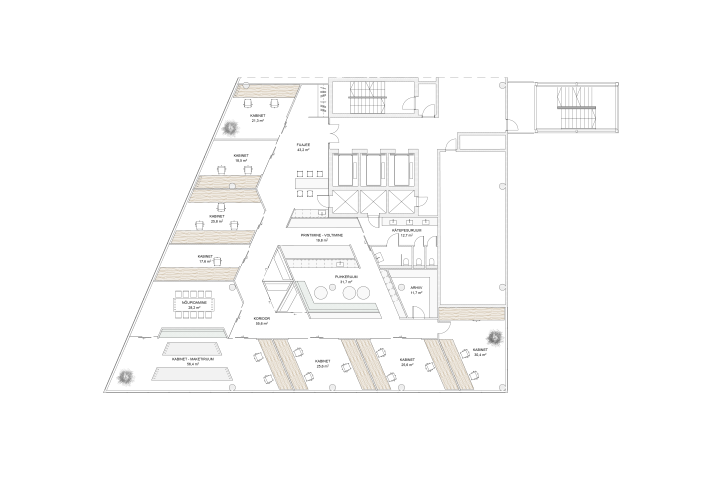
Büroopinna NATURAALNE KONTSEPTSIOON on loodud esindusliku Delta Plaza büroohoone 7. korrusele. Büroohoonet ümbritseb kiire tempoga suurlinnalik keskkond. Sisearhitektuurse lahenduse eesmärgiks oli luua ümbritsevale vastukaaluks võimalikult naturaalne ja visuaalselt rahustav interjöör. 

Funktsionaalselt toimiv ruum loodud 19 töötajatele, kes vajavad oma töös avaraid, valgusküllaseid tööpindu ning võimalust segamatuks individuaalseks tööks. Suurtest akendest sisse voogav loomulik valgus ja võrratu hoone lõuna- ja läänekülge avanev vaade, on tagatud kõikidele töökohtadele. Parima vaatega pinnale on planeeritud avar näidisteruum, mis moodustab koos kõrvalasuva nõupidamisruumiga esindusruumide kompleksi. 

Interjööri meeleolu on eestimaiselt novembrilik - karge, uduselt piimjas, samas värske ja kodune. Zen- tundega ja minimalistlikult helges interjööris domineerivad puhtad vormid ja rahulikud toonid. Naturaalsetele kuuse vineeriga kaetud ja murtud valget tooni seintele lisavad sügavust ruumi keskosas kasutatud mustjad ning tumerohelised seinad. Erimööblina on puhkeruumi lisaistmeteks kavandatud seinas hoiustatavad ümara vormiga istetumbad.

@2023 UBIN DISAIN OÜ kõik õigused kaitstud.